
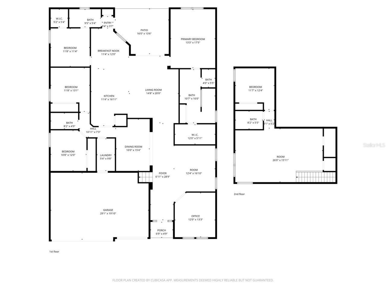
Short Sale. Located in the desirable Trevesta community of Palmetto, this spacious two-story home offers 5 bedrooms, 4 bathrooms, and approximately 3,363 square feet of living space with a three-car garage. Built in 2020, the property features a flexible floor plan suited for a variety of living arrangements and overlooks a peaceful water view.The home appears to require interior refreshing and minor rehabilitation, providing an opportunity for buyers to personalize a newer construction home wit...Short Sale. Located in the desirable Trevesta community of Palmetto, this spacious two-story home offers 5 bedrooms, 4 bathrooms, and approximately 3,363 square feet of living space with a three-car garage. Built in 2020, the property features a flexible floor plan suited for a variety of living arrangements and overlooks a peaceful water view.The home appears to require interior refreshing and minor rehabilitation, providing an opportunity for buyers to personalize a newer construction home without undertaking a full renovation. The condition of mechanical systems should be verified by buyers during their inspection.Residents of Trevesta enjoy access to community amenities including a resort-style pool and gathering areas, while the location offers convenient access to major roadways, shopping, dining, and the greater Bradenton and Sarasota areas. The property is located in Flood Zone X.Buyers should conduct their own inspections to determine condition.Agents: Please review all private remarks prior to scheduling a showing.
View MoreCourtesy of
Agency Name: KELLER WILLIAMS ELITE REALTY
Agency Contact: 239-949-8338
Agent Name: Jonathon, PA McLeod
Presented by
Agent Name: Patrick Jacques
Agent Phone: 786.566.9977
Agency Title: The Keyes Company
Send an email with a link to
Please Call For Address, Palmetto, FL 34221.
Email Please Call For Address, Palmetto, FL 34221
Thank you for your inquiry! As a thank you, we have a Special Mortgage Offer for You.
We would like to provide you a free, no-obligation, home loan pre-approval review.